
Grúa d'elevació elèctrica d'elevació elèctrica d'elevació elèctrica de tipus europeu tipus HD
El model europeu Single Overhead Crane és una maquinària d'elevació compacta dissenyada i fabricada en estricte compliment amb l'estàndard FEM i DIN, que compta amb tecnologia avançada i bonic disseny. Dividit en tipus general i tipus de suspensió, recolzant l'ús de polispast elèctric estàndard europeu, adequat per al maneig de material de taller i magatzem, muntatge de precisió en peces grans i altres llocs.
Grúa d'elevació elèctrica d'elevació elèctrica d'elevació elèctrica de tipus europeu tipus HD
Breu descripció:
El model europeu Single Overhead Crane és una maquinària d'elevació compacta dissenyada i fabricada en estricte compliment amb l'estàndard FEM i DIN, que compta amb tecnologia avançada i bonic disseny. Dividit en tipus general i tipus de suspensió, recolzant l'ús de polispast elèctric estàndard europeu, adequat per al maneig de material de taller i magatzem, muntatge de precisió en peces grans i altres llocs.

Es podria utilitzar àmpliament en la fabricació de maquinària, metal·lúrgia, petroli, petrificació, port, ferrocarril, aviació civil, alimentació, fabricació de paper, construcció, taller d'indústries electròniques, magatzem i altres situacions de manipulació de materials, esp. aplicat a la manipulació de materials que necessiten un posicionament precís, la situació de muntatge precisa de components grans.

Imatges detallades:

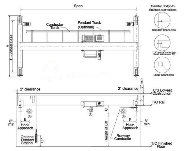
Esbós de dibuix:

Paràmetres tècnics:
Span | m | 7.5 | 10.5 | 13.5 | 16.5 | 19.5 | 22.5 | 25.5 |
Capacitat | t | 1 ~ 12,5t | ||||||
Pes total | kg | 1781 ~ 12086 | ||||||
Pes del carretó | kg | 405 ~ 740 | ||||||
Màx. Carrega de rodes | kn | 13.5 ~ 90.94 | ||||||
Ferroviari | P24 ~ P43 | |||||||
Velocitat d'elevació | m / min | 0,8 / 5 | 0,8 / 5 | 0,8 / 5 | 0,8 / 5 | 0,8 / 5 | 0,8 / 5 | 0,8 / 5 |
Altura d'elevació | m | ≥ 6 | ≥ 6 | ≥ 6 | ≥ 6 | ≥ 6 | ≥ 6 | ≥ 6 |
Potència total del motor | kw | 4,31 | 4,31 | 4,31 | 4,31 | 4,67 | 4,67 | 4,67 |
Velocitat de grua | m / min | 3-30 | 3-30 | 3-30 | 3-30 | 3-30 | 3-30 | 3-30 |
Velocitat del carretó | m / min | 2-20 | 2-20 | 2-20 | 2-20 | 2-20 | 2-20 | 2-20 |
Deures de treball | M5 / A5 | |||||||


English
Latviešu
Nederlands
ไทย
Polski
Português
Melayu
tlhIngan
Svenska
slovenščina
فارسی
Čeština





